Katalog

Badanie podłoża budowli. Metody polowe

Dostępność: ostatnie egzemplarze
Wysyłka w: 24 godziny
Cena: 99,00 zł

Cena regularna:

99.00
ilość egz.

towar niedostępny

dodaj do schowka

Opis

Obserwowany w ostatnich latach rozwój badań polowych gruntu – zarówno w odniesieniu do technologii ich wykonywania, interpretacji wyników, jak ich praktycznego wykorzystania – uświadomił konieczność nowego podejścia do inżynierii geotechnicznej i stworzył pilną potrzebę jej kompleksowego i metodycznego ujęcia.

Badania podłoża budowli stanowi obszerne i całościowe ujęcie problematyki badań polowych gruntu. Prezentuje najnowsze osiągnięcia naukowe z zakresu badań gruntu. Dodatkowo została wzbogacona radami i zaleceniami wynikającymi z wieloletniego doświadczenia zawodowego Autorów.

Wartościowym aspektem Badania podłoża budowli jest wyraźne podkreślenie znaczenia rozpoznania geologicznego – jako punktu wyjścia do tworzenia modelu podłoża na potrzeby projektowania geotechnicznego. Innym, również cennym aspektem, jest przedstawienie obecnego stanu prawnego w zakresie zasad rozpoznawania i badania podłoża gruntowego, wraz z jego zawiłościami i odmiennością stosowanych interpretacji.

Publikacja Badania podłoża budowli powinna zainteresować pracowników naukowych, geologów inżynierskich, geotechników, projektantów i wykonawców obiektów budowlanych, a zawarta w niej wiedza przyczynić się do bezpieczniejszego i ekonomicznie uzasadnionego projektowania oraz wykonywania badań podłoża gruntowego. Zakres treści i jej układ sprawia, że opracowanie może stanowić również cenną pozycję dydaktyczną dla wykładowców i studentów geologii inżynierskiej, geotechniki, budownictwa, geofizyki i inżynierii środowiska.

Z recenzji dra hab. inż. Henryka Woźniaka, prof. AGH

SPIS TREŚCI:

1. Wstęp   11
1.1. Rys historyczny Marek Tarnawski   11
1.2. Aspekty formalne procesu rozpoznania podłoża i projektowania geotechnicznego Jakub Saloni i Anna Nowosad   20
1.3. Podstawy projektowania geotechnicznego Jakub Saloni i Anna Nowosad 31
1.3.1. Obliczenia analityczne   33
1.3.2. Parametry gruntowe na potrzeby modelowania w MES   34
1.3.3. Obciążenia cykliczne i dynamiczne podłoża   45

2. Wiercenia i pobieranie próbek     49
2.1. Wprowadzenie Marek Tarnawski   49
2.2. Wiercenia wolnoobrotowe i udarowe Marek Tarnawski   57
2.3. Obserwacje hydrogeologiczne Marek Tarnawski   75
2.4. Wiercenia rdzeniowe Michał Wójcik   84
2.4.1. Czynniki wpływające na ilość i jakość próbek rdzeniowych   91
2.4.2. Metody wierceń rdzeniowych   95
2.4.3. Typy i konstrukcje rdzeniówek   98
2.4.5. Rury płuczkowe do rdzeniówek wrzutowych   130
2.4.6. Dobór koronek do wierceń rdzeniowych   131
2.4.7. Ogólne zasady eksploatacji rdzeniówek podwójnych i wrzutowych 135
2.5. Pomiary podczas prowadzenia robót wiertniczych Marek Tarnawski   137

3. Badania geofizyczne   141
3.1. Metody sejsmiczne Radosław Mieszkowski, Tomasz Szczepański i Jerzy Kłosiński   141
3.1.1. Inżynierska sejsmika powierzchniowa   143
3.1.2. Metoda sejsmiki refrakcyjnej   162
3.1.3. Inżynierska sejsmika otworowa   174
3.2. Metody elektrooporowe Radosław Mieszkowski   187
3.2.1. Metoda pionowych sondowań elektrooporowych   191
3.2.2. Metoda tomografii elektrooporowej   192
3.2.3. Zastosowanie metod elektrooporowych   198
3.2.4. Zalety i ograniczenia metod elektrooporowych   198
3.2.5. Przykłady zastosowania metod elektrooporowych   203
3.3. Metoda georadarowa (ground penetrating radar, GPR) Radosław Mieszkowski 208 
3.3.1. Podstawy procedury badawczej  210
3.3.2. Zastosowania 220
3.3.3. Przykłady  220
3.3.4. Zalety i ograniczenia   225

4. Sondowania   228
4.1. Sondowania statyczne CPT/CPTU Jędrzej Wierzbicki   228
4.1.1. Wprowadzenie — sondowania statyczne wśród innych badań in situ 228
4.1.2. Sondowania statyczne — rys historyczny   230
4.1.3. Technika pomiaru i parametry sondowania   233
4.1.4. Wstępna analiza profilu CPTU   251
4.1.5. Analiza wartości parametrów geotechnicznych   270
4.2. Sondowania dynamiczne Zbigniew Frankowski   303
4.2.1. Rys historyczny i współczesne zastosowania sond dynamicznych 303
4.2.2 Czynniki wpływające na wyniki sondowania   323
4.2.3 Tarcie gruntu o żerdzie   324
4.2.4. Głębokość krytyczna   327
4.2.5. Odległość sondowań od otworów wiertniczych   328
4.2.6. Wpływ zawodnienia gruntów   328
4.2.7. Wymiary końcówek sond   329
4.2.8. Badania zagęszczania gruntów nasypowych   329
4.2.9. Przykłady zastosowań sondowań dynamicznych   333
4.3. Sondowania obrotowe Tomasz Godlewski   334
4.3.1. Wprowadzenie   334
4.3.2. Opis metody   336
4.3.3. Sprzęt i procedura badania   339
4.3.4. Wytrzymałość gruntu na ścinanie   343
4.3.5. Wrażliwość gruntu   347
4.3.6. Prędkość obrotu (kątowa)   348
4.3.7. Anizotropia   350
4.3.8. Korekta wyników wytrzymałości uzyskanych z FVT   351
4.3.9. Historia naprężeń   354
4.3.10. Walidacja innych metod   356
4.3.11. Podsumowanie   358

5. Badania presjometryczne Marek Tarnawski   360
5.1. Wprowadzenie   360
5.2. Istota badania presjometrycznego   360
5.3. Zasady wykonywania badań presjometrycznych   367
5.4. Wyniki badania presjometrycznego   372
5.4.1. Presjometryczne naprężenie graniczne   372
5.4.2. Moduł presjometryczny   374
5.4.3. Naprężenie pełzania   375
5.5. Zmiany raportowania badań wynikające z regulacji normowych   377
5.6. Eksplikacja znaczenia parametrów presjometrycznych   379
5.7. Zasady projektowania posadowień Mćnarda   392
5.7.1. Nośność podłoża   392
5.7.2. Podatność podłoża   399
5.8. Perspektywy rozwoju   404
5.9. Podsumowanie   413

6. Badania dylatometrem Tomasz Godlewski   415
6.1. Wprowadzenie   415
6.2. Opis metody   416
6.3. Sprzęt i procedura badania   417
6.4. Wyniki badania dylatometrycznego   425
6.4.1. Identyfikacja parametrów bezpośrednich DMT — założenia ogólne 427
6.4.2. Ciśnienie porowe z DMT   428
6.5. Interpretacja wyników badań   430
6.5.1. Identyfikacja gruntów i profil podłoża   432
6.5.2. Historia naprężenia w gruncie   435
6.5.3. Parametry wytrzymałościowe gruntów   440
6.5.4. Parametry odkształcalności gruntu   446
6.5.5. Prędkość rozproszenia nadciśnienia porowego   450
6.5.6. Współczynnik konsolidacji gruntu   451
6.5.7. Ciężar objętościowy gruntu   453
6.6. Kalibracja/walidacja DMT   453
6.6.1. Interpretacja profilu gruntowego   454
6.6.2. Zestawienie wartości modułów dylatometrycznych   455
6.6.3. Kalibracja wartości modułów na tle osiadań   457
6.7. Przykłady zastosowań w praktyce   459
6.7.1. Nośność podłoża   459
6.7.2. Osiadanie fundamentów bezpośrednich   459
6.7.3. Problematyka określania sztywności gruntu   460
6.7.4. Nośność pala obciążonego siłą poziomą   465
6.8. Podsumowanie   465

7. Próbne obciążenia pali i podłoża gruntowego Kazimierz Gwizdała i Andrzej Slabek   467
7.1. Próbne obciążenia pali na siły pionowe, osiowe   467
7.1.1. Charakterystyka przekazywania obciążenia przez pale na podłoże   467
7.1.2. Nośność pali na wciskanie według zasad Eurokodu 7 wersja PN-EN 1997-1:2008   469
7.1.3. Konstrukcje do próbnych obciążeń wciskających   472
7.1.4. Badania nośności pala na wyciąganie   491
7.1.5. Metody badań statycznych pali na siły pionowe   494
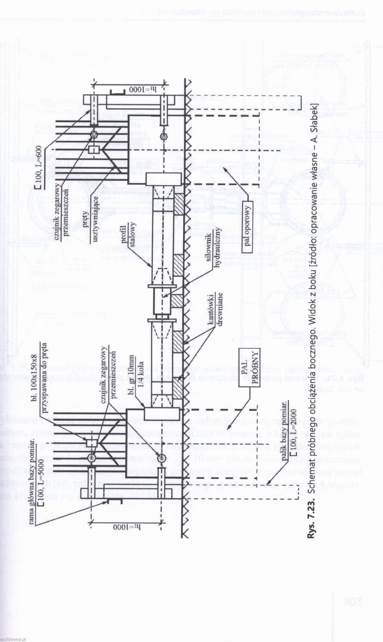
7.2. Badania pali obciążonych oddziaływaniem bocznym   503
7.3. Badania dynamiczne pali   508
7.3.1. Badanie dynamiczne pali PDA (pile driving analysis) oraz DLT (dynamit load test)   511
7.3.2. Modele analityczne stosowane w interpretacji badań dynamicznych pali   516
7.3.3. Badania ciągłości i długości pali/kolumn   520
7.4. Próbne obciążenia podłoża za pomocą płyt   530
7.4.1. Warunki techniczne wykonywania próbnego obciążenia gruntu   532
7.4.2. Interpretacja wyników badań   533
7.5. Inne metody badań podłoża   536

8. Wzmocnienia podłoża Jakub Saloni, Anna Nowosad i Monika Ura   542
8.1. Cele wzmacniania podłoża   542
8.2. Definicja i podział metod wzmacniania podłoża   546
8.3. Rozpoznanie podłoża na potrzeby jego wzmocnienia   549
8.3.1. Zalecenia dotyczące metod i zakresu rozpoznania podłoża   549
8.3.2. Znaczenie metod polowych badań gruntu na potrzeby wzmacniania podłoża   561
8.4. Technologie wzmocnienia podłoża bez wprowadzania inkluzji   562
8.4.1. Zagęszczanie dynamiczne (dynamit compaction, DC)   562
8.4.2. Zagęszczanie impulsowe (rapid impact compaction, RIC)   567
8.4.3. Wibroflotacj a (vibroflotation, VF)   568
8.4.4. Mikrowybuchy (microblasting, MMB/ DDC)   572
8.4.5. Zagęszczanie walcem dynamicznym (impact roller compaction, RDC) 574
8.4.6. Badania na potrzeby projektowania i odbioru efektów zagęszczania . 575
8.4.7. Stabilizacja masowa (solidyfikacja, mass stabilization, MS)   577
8.4.8. Konsolidacja z zastosowaniem prefabrykowanych geodrenów pionowych (vertical drains, VD)   579
8.4.9. Konsolidacja próżniowa (Menard Vacuum, MV)   585
8.5. Technologie z wprowadzaniem inkluzji   586
8.5.1. Kolumny wymiany dynamicznej (dynamit replacement, DR)   586
8.5.2. Kolumny żwirowe/wibrowymiana (stone columns, SC/KSS)   588
8.5.3. Kolumny z cementogruntu (deep soi! miting, DSM)   590
8.5.4. Kolumny betonowe lub z iniektu — uwagi ogólne   594
8.5.5. Kolumny przemieszczeniowe wkręcane formowane w gruncie (CMC, FDP, CSC, SDC, Screwsol)   600
8.5.6. Kolumny przemieszczeniowe wwibrowywane formowane w gruncie (MSC, CSC, VDC)   601
8.5.7. Kolumny wiercone świdrem ciągłym (continuousflight auger piles, CFA)   602
8.5.8. Rola warstwy transmisyjnej   603
8.6. Badania do celów remediacji terenów zanieczyszczonych   604

9. Podsumowanie Marek Tarnawski   607
Bibliografia   628

Dane techniczne

Autor Zbigniew Frankowski, Tomasz Godlewski, Kazimierz Gwizdała
Wydanie 2020
Liczba stron 666
Okładka miękka
Format B5

Tytuły polecane

do góry
Sklep jest w trybie podglądu
Pokaż pełną wersję strony
Realizacja: N4K.eu
Sklep internetowy Shoper.pl